Restauration du Château Royal de Senlis

Véritable trésor architectural et berceau de la dynastie capétienne, le Château Royal de Senlis est l’une des rares résidences palatiales du Moyen Âge encore conservées en élévation.

Fermé partiellement pour des raisons de sécurité, cet édifice emblématique nécessite aujourd’hui d’importants travaux de restauration pour assurer sa sauvegarde, révéler son architecture et l’ouvrir pleinement au public.

Le Château Royal devient site emblématique de la Mission Stéphane Bern – Fondation du patrimoine en avril 2026.

Le Château Royal devient projet emblématique des Hauts-de-France par la Mission Bern, fondation du patrimoine

Le programme de restauration

Le projet de restauration

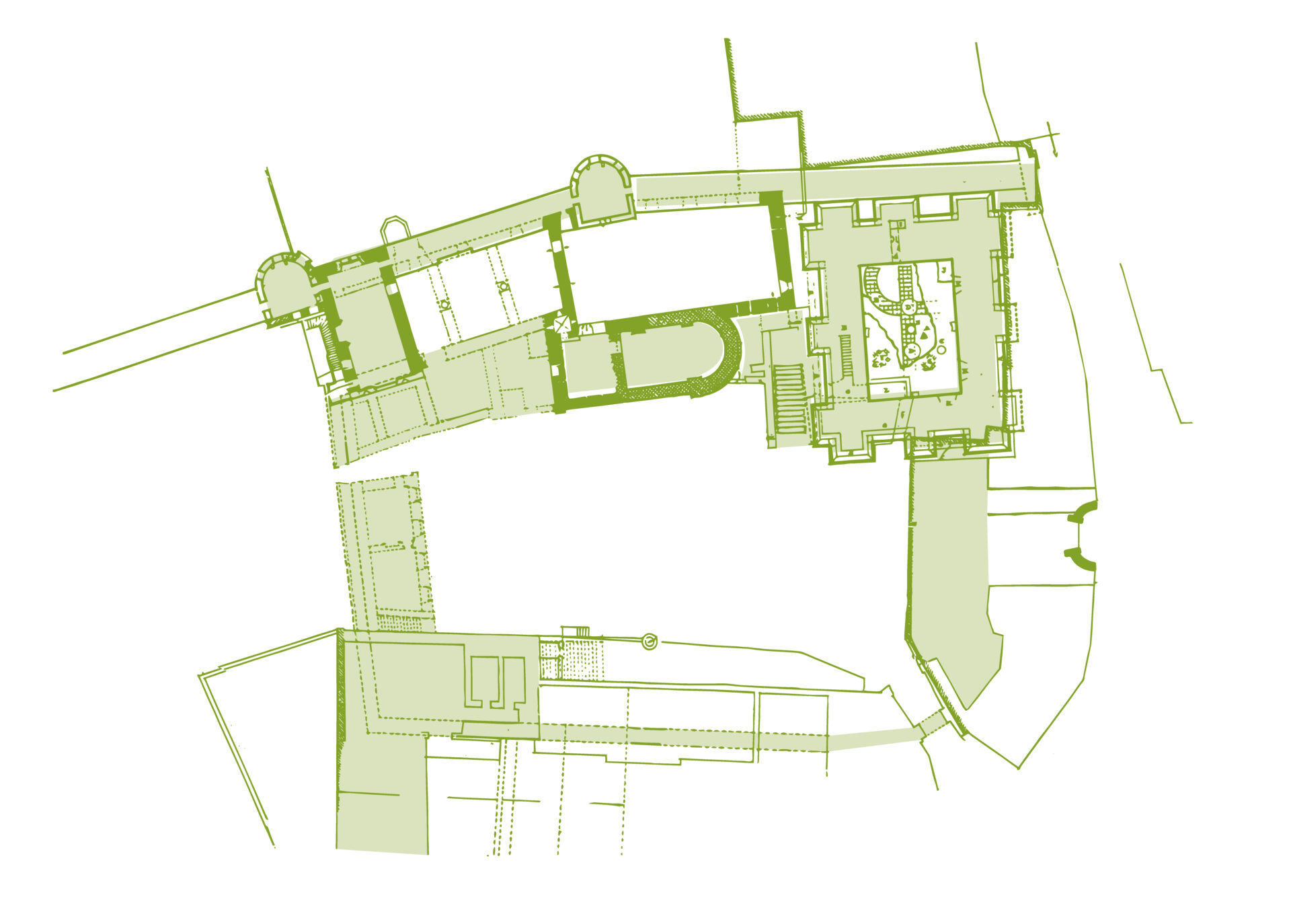
Classé Monument historique depuis 1862, le Château royal présente aujourd’hui un état sanitaire préoccupant : dégradations des maçonneries, fissures structurelles, arrachements de parements et infiltrations d’eau.

Le programme de travaux, mené par la Ville de Senlis sous la direction d’Olivier Weets, Architecte en Chef des Monuments Historiques, s’articule autour de trois objectifs majeurs :

  • Consolider et sécuriser : stabilisation des parements et arases, renforcements structurels du donjon, de la chambre du Roi et du rempart gallo-romain du IIIe siècle.

  • Restaurer et mettre en valeur : réparation des baies antiques, restitution du toit et de la voûte lambrissée de la chambre du Roi, traitement des sols pour redonner une meilleure lisibilité au palais.

  • Aménager pour le public : création d’un véritable parcours de visite sécurisé avec l’ouverture des tours, l’accès au chemin de ronde et une mise aux normes complète de la chambre du Roi.

 

Le calendrier prévisionnel du chantier

Le chantier de restauration s’étalera sur plusieurs années, divisé en trois grandes tranches d’une durée prévisionnelle de 14 mois chacune, à partir du printemps 2026 :

  • Tranche 1 (dès 2026) : Consolidation du château royal (interventions sur le rempart gallo-romain, le donjon et la chambre du roi).

  • Tranche 2 : Mise en valeur des ouvrages existants pour une meilleure lecture du site et de son histoire.

  • Tranche 3 : Travaux d’aménagement pour rendre le site pleinement accessible au public (chemin de ronde, intérieurs des tours).

Le budget et le financement de l’opération

Le coût global estimé pour la première tranche de travaux du Château royal s’élève à 1 430 000 € HT.
L’objectif de la Ville de Senlis est de réunir 80% de financements (soit 1 140 000 €) grâce aux subventions publiques et au mécénat, laissant un reste à charge de 20% pour la commune (minimum légal).

Le Château royal est par ailleurs soutenu par la Mission Stéphane Bern et la Fondation du Patrimoine, la mobilisation citoyenne et le mécénat d’entreprise jouant un rôle crucial dans le financement de ce projet d’envergure.

Un peu d’histoire : une résidence royale millénaire

Installé sur l’ancien castellum gallo-romain du IIIe siècle, le Château royal est le témoin privilégié de l’Histoire de France :

  • 987 : Hugues Capet y est élu Roi des Francs, marquant le début de la dynastie capétienne.

  • XIIe siècle : Louis VI le Gros reconstruit le palais tel que nous en devinons les vestiges aujourd’hui.

  • XIIIe siècle : Le roi Saint-Louis y réside régulièrement et y fonde le prieuré Saint-Maurice adjacent.

  • XVIe – XVIIIe siècle : À partir d’Henri IV, les rois délaissent le château qui devient alors le siège du tribunal (le présidial) jusqu’à la Révolution.

  • 1956 : La Ville de Senlis rachète les ruines du château, qui avait été transformé en parc à l’anglaise au XIXe siècle par la famille Turquet de la Boisserie.

Toute l’histoire du Château Royal